|
 |
|
In addition to saving your plans, your portfolio provides easy access to plan brochures that let you view, print, and compare plans before making your final selection. Requires Account. |
 |
 |
The Plan Brochure contains all the information you need to compare and make your final selection. For a single plan, click the View Brochure below. To print more than one plan, click Add to My Portfolio and access them from there |
|
Geneva 2550.4 150063.4 |
 |
Printed Plans | $0.00 |
Plans On CD | $0.00 |
|
 |
 |
|
|
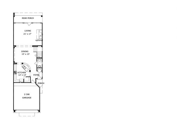
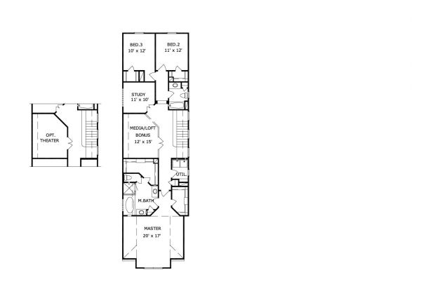
Special Features
Cov'd. Rear Porch
Foyer
Master Up
Theater/Media
Specifications |
Style |
Craftsman/Victorian |
Exterior Materials |
Brick & Siding |
Bedrooms |
3 |
Bathrooms (Full / Half) |
2 / 1 |
Total Living Sq Ft |
2,550 |
Total Covered Sq Ft |
3,142 |
Total Dimensions |
Width |
Depth |
Height |
|
21' 10" |
75' 0" |
27' 10" |
Standard Features |
|
First Floor |
Other Floors |
Square Footage |
972 |
1,578 |
Bedrooms |
0 |
3 |
Ceiling Height(s) |
10' 0" |
8' 0" |
Master Bedroom | | X |
Dining Room | X | |
Living Room | X | |
Family Room | X | |
Study | | X |
Guest Room | | X |
Garage Info |
2 car, Front Load, Straight In |
|