|
 |
|
In addition to saving your plans, your portfolio provides easy access to plan brochures that let you view, print, and compare plans before making your final selection. Requires Account. |
 |
 |
The Plan Brochure contains all the information you need to compare and make your final selection. For a single plan, click the View Brochure below. To print more than one plan, click Add to My Portfolio and access them from there |
| |
Waring 5086 170099 |
 |
| Printed Plans | $0.00 |
| Plans On CD | $0.00 |
|
 |
 |
|
|
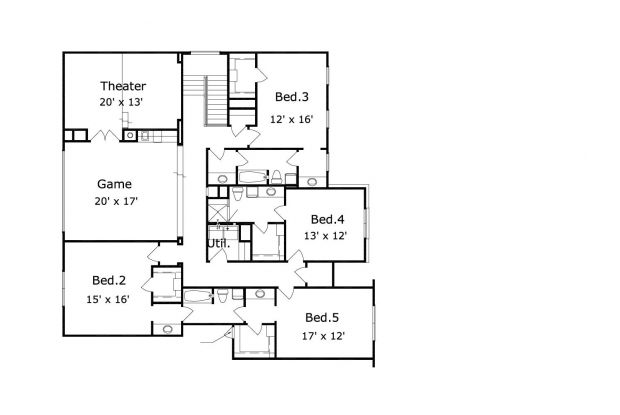
Special Features
Butler Pantry
Cov'd. Front Porch
Cov'd. Rear Porch
Foyer
Gameroom
Int. Balcony
Mud Entry
Theater/Media
| Specifications |
| Style |
Transitional |
| Exterior Materials |
Brick & Stucco |
| Bedrooms |
5 |
Bathrooms (Full / Half) |
4 / 1 |
| Total Living Sq Ft |
5,089 |
| Total Covered Sq Ft |
6,223 |
| Total Dimensions |
Width |
Depth |
Height |
| |
58' 0" |
79' 0" |
35' 9" |
| Standard Features |
| |
First Floor |
Other Floors |
| Square Footage |
2,642 |
2,444 |
| Bedrooms |
1 |
4 |
| Ceiling Height(s) |
11' 0" |
9' 0" |
| Master Bedroom | X | |
| Dining Room | X | |
| Living Room | X | |
| Family Room | X | |
| Game Room | | X |
| Study | X | |
| Guest Room | | X |
| Home Theater | | X |
| Garage Info |
2 car, Front Load, Straight In |
| Stair Info |
Standard |
|